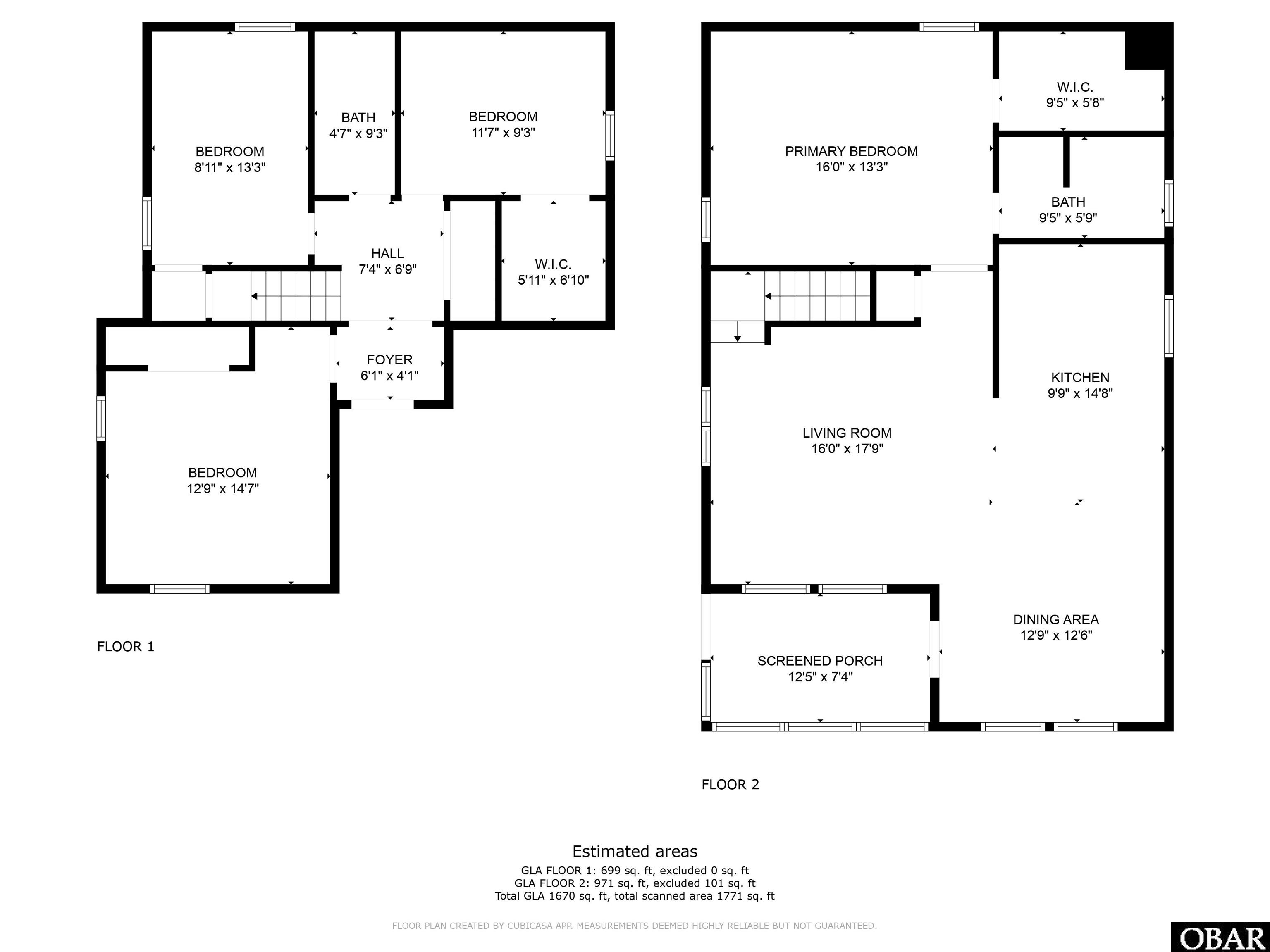
Nestled in a peaceful cul-de-sac between the highways, this meticulously maintained 1,670 sq. ft. single-family home in Nags Head, NC, is a rare find. Boasting 4 spacious bedrooms and 2 full bathrooms, this charming coastal retreat has never been rented and comes fully furnished, ready for you to move in and start enjoying beach life. The home’s thoughtful features include a private screened-in porch, perfect for relaxing evenings, and an outdoor shower to rinse off after a day at the beach. The detached tool shed provides additional storage, and the owner’s closet offers secure space for your belongings. Just 1 1/2 blocks from beach access, this property is ideally located for those who love the ocean. You’ll be within walking distance of several local restaurants that showcase the best of Nags Head’s culinary scene, and directly behind Nags Head Elementary School. For outdoor enthusiasts, Jockey’s Ridge State Park is just a 2-minute drive away, and the historic Wright Brothers Memorial is only 8 minutes down the road. Whether you’re seeking a full-time residence or a vacation getaway, this home’s unbeatable location and great condition make it a must-see. Don’t miss out on the opportunity to own a piece of paradise in one of the Outer Banks’ most desirable neighborhoods.
- APPLIANCES:
- Dishwasher, Microwave, Range/oven, Dryer, Washer, Refrigerator w/ice maker, 2nd refrigerator
- INTERIOR FEATURES:
- Attic, Pantry, Ensuite
- EXTRAS:
- Outside shower, Smoke detector(s), Outside lighting, Lawn sprinklers, Screened porch, Storage shed, Inside laundry room
- Heating System:
- Central, Electric
- Cooling System:
- Central
- Subdivision:
- The Enclaves At Nh
- Construction:
- Frame
- Foundation:
- Slab, Piling
- Roof:
- Asphalt/fiber shingle
- Roads:
- Paved
- Floor Covering:
- Carpet, Vinyl
- Water:
- Municipal
- Sewer/Septic:
- Private septic
- STYLE:
- Coastal
- EXTERIOR:
- Vinyl
- COUNTER TOPS:
- Laminate, Other
- OPTIONAL ROOMS:
- Foyer, Pantry, Utility room, Workshop
- Tax Year:
- 2023
- Taxes:
- $2,587
- Assoc. Fee Y/N/Voluntary:
- No - Restrictive Covenants May Apply
- Estimated Annual Fee $:
- $0
- Furnishings Available Y/N:
- Yes
- Bill of Sale Amount $:
- $1
- Primary Residence (Y/N):
- No
- Ownership:
- Owned more than 12 months
- Yr Electric Expense:
- $0
- Yr Water Expense:
- $0
- Yr Telephone Expense:
- $0
- Yr Cable TV Expense:
- $0
- Homeowner/Dwelling Insura:
- $0
- Wind Insurance:
- $0
- Flood Expenses:
- $0
- Maintenance Expenses:
- $0
- Pool/Spa Expense:
- $0
- Other Expenses:
- $0
- Other Expenses 2:
- $0
- Other Expenses 3:
- $0
- Total Expenses:
- $0
- Yearly Expense Act/Est:
- $0
- Owner Rental Income 2016$:
- $0
- Owner Rental Income 2015$:
- $0
- Owner Rental Income 2017$:
- $0
- Advertised Income 2016$:
- $0
- Advertised Income 2015$:
- $0
- Advertised Income 2017$:
- $0
- Est Annual Rental Income:
- $0
- Listed By:
- Keller Williams - Outer Banks
- Agent First:
- John
- Agent Last:
- Peters
For sale
115 Crocker Road, Nags Head, NC 27959
- Living Area Sq. Ft :
- 1,670 Sqft
- Property Type :
- Residential
- Listing Type :
- For sale
- Listing ID :
- 126769
- Price :
- $649,000
- Water View :
- More than 5th row
- Bedrooms :
- 4
- Bathrooms :
- 2
- Year Built :
- 1998
- Country:
- United States
- State:
- NC
- County:
- Dare
- City:
- Nags Head
- Zipcode:
- 27959
- Status :
- Sold CO OP by Member
- Type :
- Single family - detached
- Area :
- Nags head between hwys
- Unit/Lot # :
- Lot #4
- DOM :
- 24
